01302 599345
Contact Us
Home
About Us
How We Create Value
Services We Offer
Projects
City Fields
All Projects
News
Contact Us
Our Projects
Achieving best value on land & securing planning consents
PROJECT FILTERS
All
COMPLETED
ONGOING
ONGOING
City Fields Central, Wakefield
Wakefield
READ MORE
COMPLETED
City Fields North, Wakefield
Wakefield
READ MORE
COMPLETED
City Fields South at Heathlands, Wakefield
Wakefield
READ MORE
COMPLETED
Nelson Street
Nelson Street
READ MORE
Nelson Street
Client:
Moss Properties
Status:
Complete
Scheme type:
Mixed Use - Brownfield
Scheme detail:
4 Dwellings, 3000 sqft Offices and 5000 sqft Retail
Consultancy Role:
Planning and Construction
Gross Value:
£7.5 million
COMPLETED
Drighlington, Leeds
Leeds
READ MORE
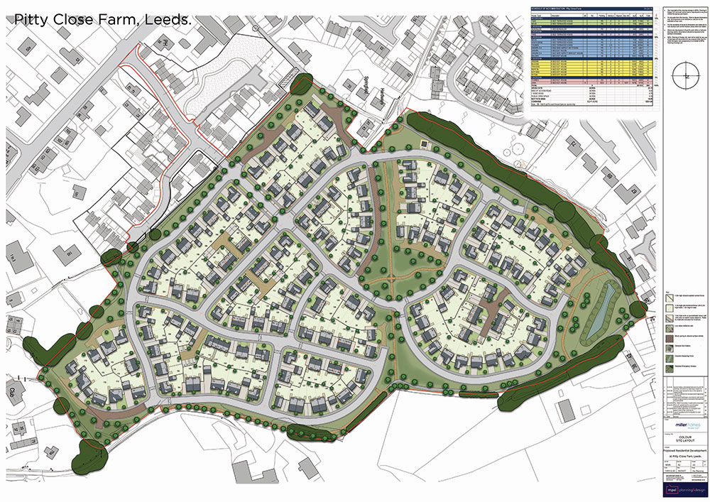
Drighlington, Leeds
Client:
Miller Homes
Status:
Complete
Scheme type:
Residential – Greenfield
Scheme detail:
204 Dwellings
Consultancy Role:
Acquisition and Planning
Gross Value:
£60m
COMPLETED
Bramhope, Leeds
Leeds
READ MORE
Bramhope, Leeds
Client:
Miller Homes
Status:
Complete
Scheme type:
Residential - Greenfield
Scheme detail:
319 Dwellings
Consultancy Role:
Acquisition and Planning
Gross Value:
£100m
COMPLETED
Chantry House, Belgravia
London
READ MORE
Chantry House, Belgravia, London
Client:
Private Land Owner
Status:
Complete
Scheme type:
Residential - Extension
Scheme detail:
Penthouse Apartment
Consultancy Role:
Planning and Construction
Gross Value:
£15 million
ONGOING
Kentish Town, London
Kentish Town, London
READ MORE
Kentish Town, London
Client:
Frasers Group
Status:
Ongoing
Scheme type:
Mixed Use - Redevelopment
Scheme detail:
8 apartments, office and retail
Consultancy Role:
Planning, Demolition and Construction
Gross Value:
£20 million
COMPLETED
Kirk Sandall, Doncaster
Doncaster
READ MORE
Kirk Sandall, Doncaster
Client:
Private Land Owner
Status:
Complete
Scheme type:
Mixed Use - Greenfield
Scheme detail:
96 Dwellings and 2750 sqft Offices
Consultancy Role:
Acquisition, Planning and Construction
Gross Value:
£20 million
COMPLETED
Bowmans Flour Mill
Eggborough
READ MORE
Bowmans Flour Mill, Eggborough
Client:
Private Land Owner
Status:
Complete
Scheme type:
Residential - Brownfield
Scheme detail:
110 Dwellings
Consultancy Role:
Acquisition, Planning, Demolition, Remediation and Disposal
Gross Value:
£25 million
ONGOING
Austerfield, Doncaster
Doncaster
READ MORE
Austerfield, Doncaster
Client:
Private Land Owner
Status:
Ongoing
Scheme type:
Mixed Use - Greenfield
Scheme detail:
4,000 sqft retail and 5 dwellings
Consultancy Role:
Acquisition, Planning, Construction and Disposal
Gross Value:
£5 million
ONGOING
Hatfield Lane, Doncaster
Doncaster
READ MORE
Hatfield Lane, Doncaster
Client:
Private Land Owner
Status:
Ongoing
Scheme type:
Mixed Use - Greenfield
Scheme detail:
803 dwellings and circa 400,000 sqft commercial unit
Consultancy Role:
Acquisition, Planning, Disposals and Construction
Gross Value:
£250 million
For regular updates on our projects please
connect with us on LinkedIn
Are you ready to talk to DDC about your land or development requirements?
CONTACT US NOW