15074_01_D_Site-Layout
City Fields South at Heathlands, Wakefield
  • Client: Stretton Estates
  • Status: Completed
  • Scheme type: Mixed Use - Brownfield
  • Scheme detail: 469 Dwellings and Local Centre
  • Consultancy Role: Acquisition, Planning, Demolition, Remediation and Disposals
  • Gross Value: £150 million
View project gallery

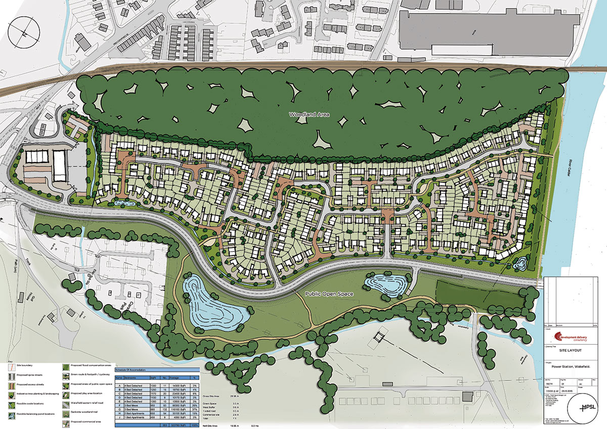
DDC has played a pivotal role in supporting Stretton Estates in bringing forward their landholding at the former Power Station Site, located at the southern end of City Fields. This followed the successful delivery of the initial phases at City Fields North.

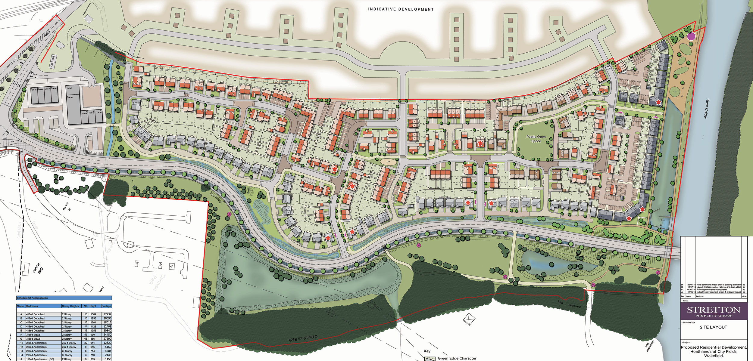
On Stretton’s initial landholding – the Heathlands site, which had remained undeveloped since its acquisition in the late 1990s – DDC secured planning permission for 334 dwellings and a Local Centre.

DDC then led the disposal of this initial residential parcel, which was delivered through two separate transactions: one with Avant Homes and another with Rula Developments, in partnership with Wakefield District Housing. These disposals were made possible by DDC’s leadership in the complex remediation of the former power station, transforming the site into a fully developable, oven-ready parcel and unlocking its true value.

In parallel, DDC supported Stretton Estates in acquiring the adjacent former railway sidings from Network Rail. The same remediation-led approach was applied, bringing the land up to a developable standard. Planning permission for 135 dwellings was subsequently secured, with Wakefield Council agreeing to a reduced affordable housing provision due to the viability challenges presented by the extensive remediation works required on this brownfield land.

DDC then led the successful disposal of this parcel to Stonebridge Homes. All homes across both sites are now fully completed, marking the successful transformation of a long-dormant site into vibrant new communities.

Are you ready to talk to DDC about your land or development requirements? CONTACT US NOW