City Fields, Wakefield

Urban Extension

DDC’s Involvement:
Land Ownership

Over a Decade of Strategic Delivery

DDC has been instrumental in the delivery of City Fields for over 10 years, starting with our initial commission to support the master planning of the site and facilitate early land acquisition. Since then, we have taken on a central project management role across the evolution of City Fields, including:

  • Design and delivery of key infrastructure, such as the Wakefield Eastern Relief Road
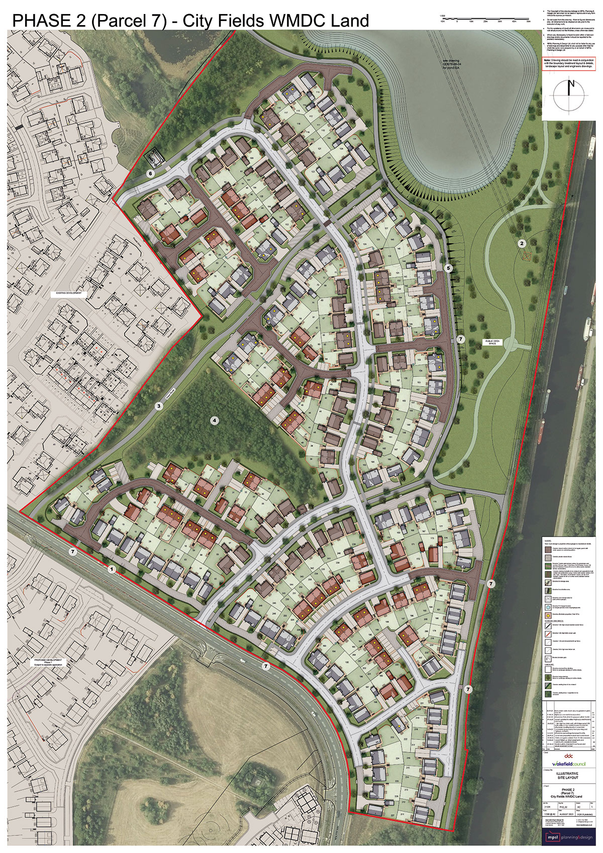
  • Securing planning consents for over 11 residential parcels
  • Managing land disposals across the majority of phases
  • Overseeing major remediation works to unlock complex brownfield sites

Each phase of the commission has presented its own distinct challenges and opportunities, with DDC playing a consistent role in realising the potential of this ambitious regeneration project.

City Fields Delivery

Commissioned in Three Key Phases

1. City Fields Central – Wakefield Council

Status: Ongoing

Circa 800 homes planned. Planning secured for 465 units to date, with further applications under review. Land sales have generated over £20m in net receipts.

Find out more

2. City Fields North – Miller Homes, Grantley Developments & Stretton Estates

Status: Completed

Circa 1,190 homes delivered. DDC managed planning, land disposals, and infrastructure delivery, including major developer engagement.

Find out more

3. City Fields South (Heathlands) – Stretton Estates

Status: Completed

Planning secured for 334 homes and a Local Centre. Complex brownfield remediation completed to enable development and land disposals.

Find out more

A Legacy of Impact

Through strategic oversight, technical expertise, and long-term collaboration with public and private sector partners, DDC has helped shape City Fields into a thriving new community. The project is a testament to the value of early planning, sustained project management, and the ability to unlock complex land opportunities to deliver genuine place-making.

CONTACT US NOW