This latest and final commission on City Fields sees DDC appointed by Wakefield Council to lead the delivery of the remaining land parcels at City Fields, as identified within the City Fields Masterplan Framework. This ongoing phase is expected to deliver approximately 800 new homes, contributing significantly to the wider regeneration of the area.
To date, three planning permissions have been successfully secured by DDC, totalling 465 dwellings, with a further application for 151 homes currently under consideration. Land disposals for Phases 1 and 2 have already been completed, delivering net receipts of over £20 million on an unconditional basis—reflecting DDC’s commitment to maximising value for the landowner.
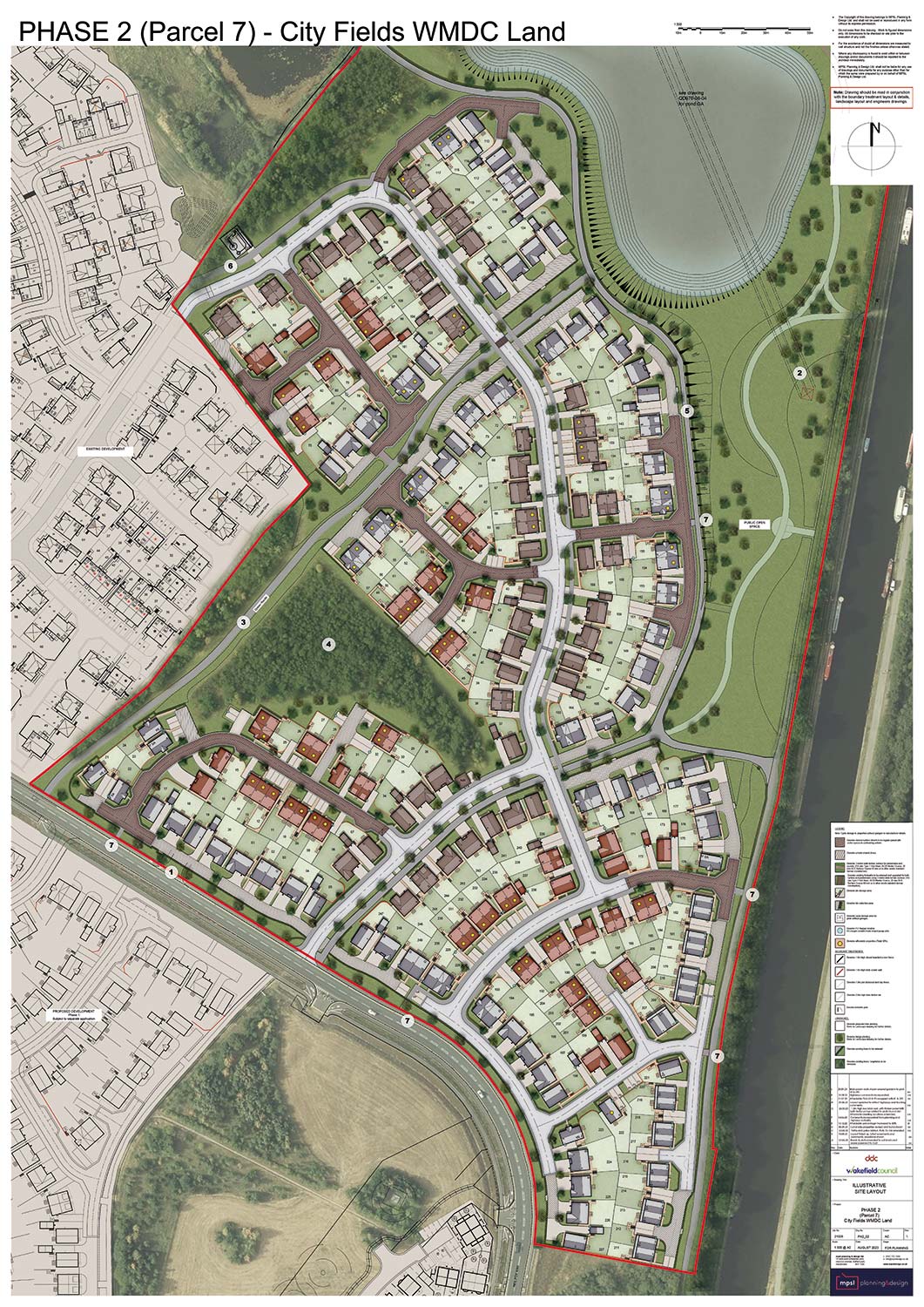
Taylor Wimpey, the purchaser of Phase 1, has made a strong start on site, with their show home complex opening in July 2025. Barratt Redrow are set to commence development on Phase 2 within the coming year.
DDC is currently progressing the disposal of Phase 4A, which is planned to be delivered as a fully affordable housing scheme. In addition, an exciting waterfront development of circa 151 homes is being brought forward on Phase 3, with a high-quality, design-led proposal currently under review by planners.
Looking ahead, there is potential for specialist uses on the remaining landholdings, alongside further opportunities for additional residential development. DDC looks forward to continuing to unlock this value on behalf of Wakefield Council, bringing forward well-planned, sustainable development to complete the City Fields vision and delivering much needed housing on this allocation.